+39 347.1602123    +39 347.1674705
info@bramantesas.it

Urbino – Casale interamente ristrutturato in ottime condizioni con annessi circa 2 ha di terreni.

Urbino – Casale interamente ristrutturato in ottime condizioni con annessi circa 2 ha di terreni.


RIF: 021.21
INDIRIZZO: Urbino, PU, Italia
CITTA': Urbino

€500.000,00

Dettagli


TIPOLOGIA: Case coloniche
CONDIZIONI: Ristrutturato
RISCALDAMENTO: Autonomo
TERRENO: 1,7
CUCINA: Abitabile
CLASSE IMMOBILE: Media
STATO IMMOBILE: Ottimo / Ristrutturato
LATI LIBERI: Quattro

234 m2
10 Stanza/e
4 Camera/e
4 Bagno/i
1 Garage
2 Piano/i

Descrizione


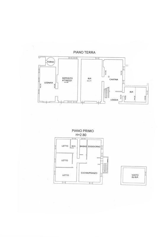
Ad Urbino, in località San Giovanni in Pozzuolo posizione panoramica, vendesi un casale  interamente ristrutturato con 1,7 ha di terreno.  La struttura adibita ad abitazione è su due piani con una metratura totale di circa mq 235. Il Piano Terra  è suddiviso in: garage, legnaia, cantina, loggia, pergolato e due ampi locali adibiti a saloni. Al Piano Primo l’alloggio composto da ampia cucina abitabile, soggiorno,  disimpegno, bagno,  due camere matrimoniali oltre alla camera padronale con bagno finestrato. A lato del fabbricato abbiamo un'altra costruzione anch'essa ristrutturata che si presta a molteplici usi (dépendance ecc.) ed un altro immobile da adibire ad accessorio. Il terreno circostante la casa è interamente piantumato con alberi da frutta e interamente fruibile grazie alla realizzazione di gradoni e sentieri. L’impianto idrico è collegato al pubblico acquedotto e nella proprietà è stato realizzato un pozzo Completano la proprietà a due capanni  ristrutturati,  e un forno perfettamente funzionante L’immobile è raggiungibile da strada privata.     Classe energetica E EPgl, nren 260.44; Prezzo € 500.000,00 tratt.


Planimetrie


TI INTERESSA QUESTO IMMOBILE? CONTATTACI SUBITO

Potrebbero interessarti anche questi..

Confronta