+39 347.1602123    +39 347.1674705
info@bramantesas.it

Fermignano, zona artigianale - Vendesi capannone con magazzino, ufficio e ampio scoperto

Fermignano, zona artigianale - Vendesi capannone con magazzino, ufficio e ampio scoperto


RIF: 027.25
INDIRIZZO: zona artigianale
CITTA': Fermignano

€160.000,00

Dettagli


TIPOLOGIA: Attività commerciali
CONDIZIONI: Molto buone
RISCALDAMENTO: Autonomo
TERRENO: 600 mq
CLASSE IMMOBILE: Media
STATO IMMOBILE: Buono / Abitabile
LATI LIBERI: Quattro

500 m2
3 Stanza/e
0 Camera/e
1 Bagno/i
0 Garage
1 Piano/i

Descrizione


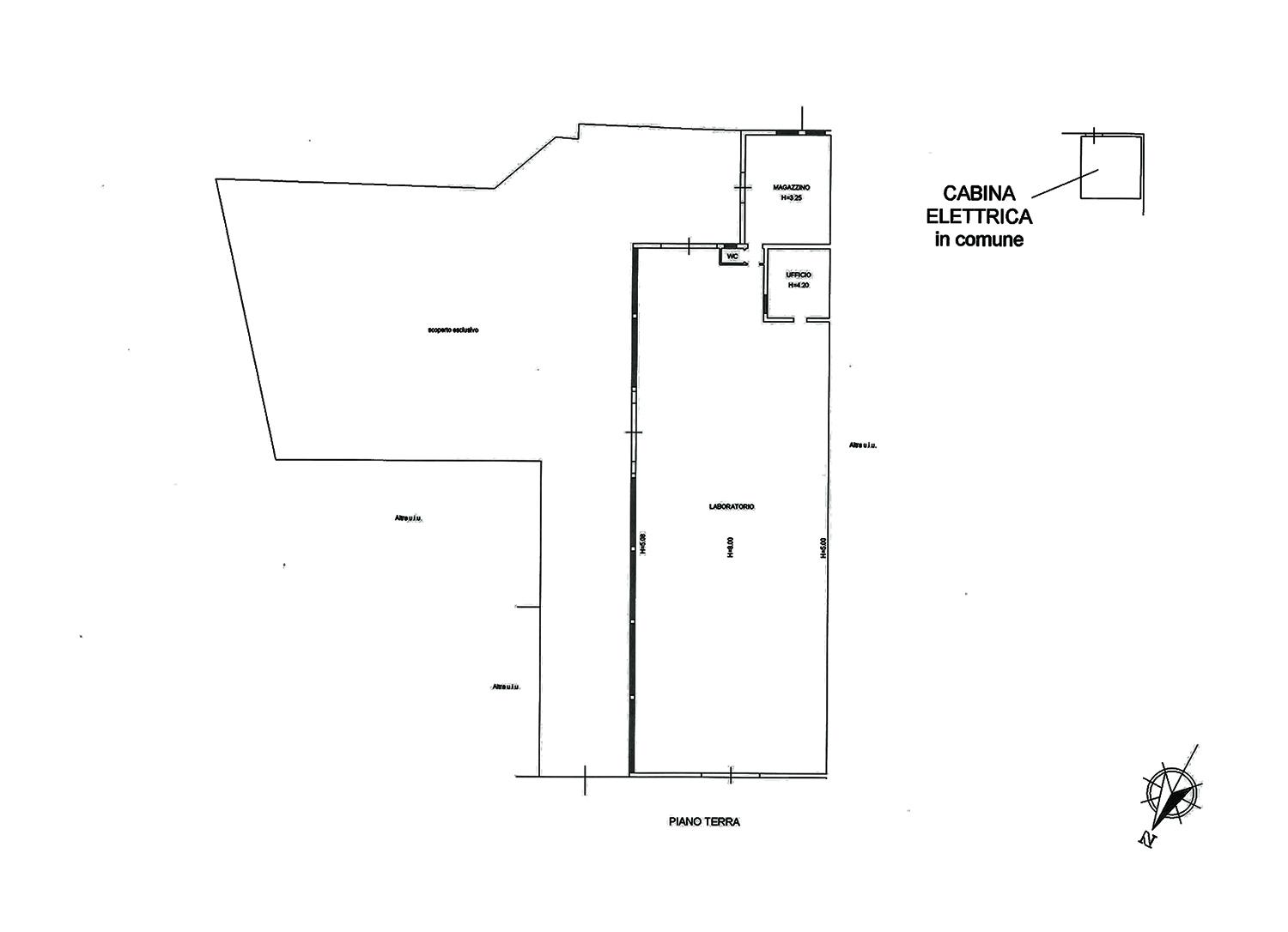
Nella zona artigianale alle porte di Fermignano, vendesi un capannone di circa 500 mq dotato di ufficio, bagno e magazzino ed un ampio scoperto di pertinenza di circa 600 mq

Il capannone a campata unica, è dotato di doppio ingresso sul fronte e sul retro e di un ampio portone carrabile posto su un lato per un facile accesso dei mezzi più ingombranti. 
È fornito di impianto elettrico, impianto ad aria compressa ed è rifinito con un pavimento industriale di facile manutenzione. 
È in ottimo stato generale, già sgombro e pronto all'uso.

Classe energetica G EPgl,nren 323,86
Prezzo di vendita: € 160.000


Planimetrie


TI INTERESSA QUESTO IMMOBILE? CONTATTACI SUBITO

Potrebbero interessarti anche questi..

Confronta