+39 347.1602123    +39 347.1674705
info@bramantesas.it

030.24 - Chiaserna di Cantiano - casetta indipendente cielo-terra con scoperto

030.24 - Chiaserna di Cantiano - casetta indipendente cielo-terra con scoperto


RIF: 030.24
INDIRIZZO: loc. Chiaserna
CITTA': Cantiano

€50.000,00

Dettagli


TIPOLOGIA: Appartamenti
CONDIZIONI: Discrete
RISCALDAMENTO: Autonomo a gasolio
TERRENO: 118 mq
CUCINA: Abitabile
CLASSE IMMOBILE: Media
STATO IMMOBILE: Buono / Abitabile
LATI LIBERI: Tre

113 m2
6 Stanza/e
4 Camera/e
2 Bagno/i
1 Garage
3 Piano/i

Descrizione


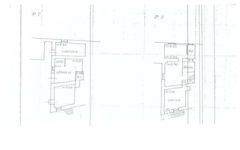
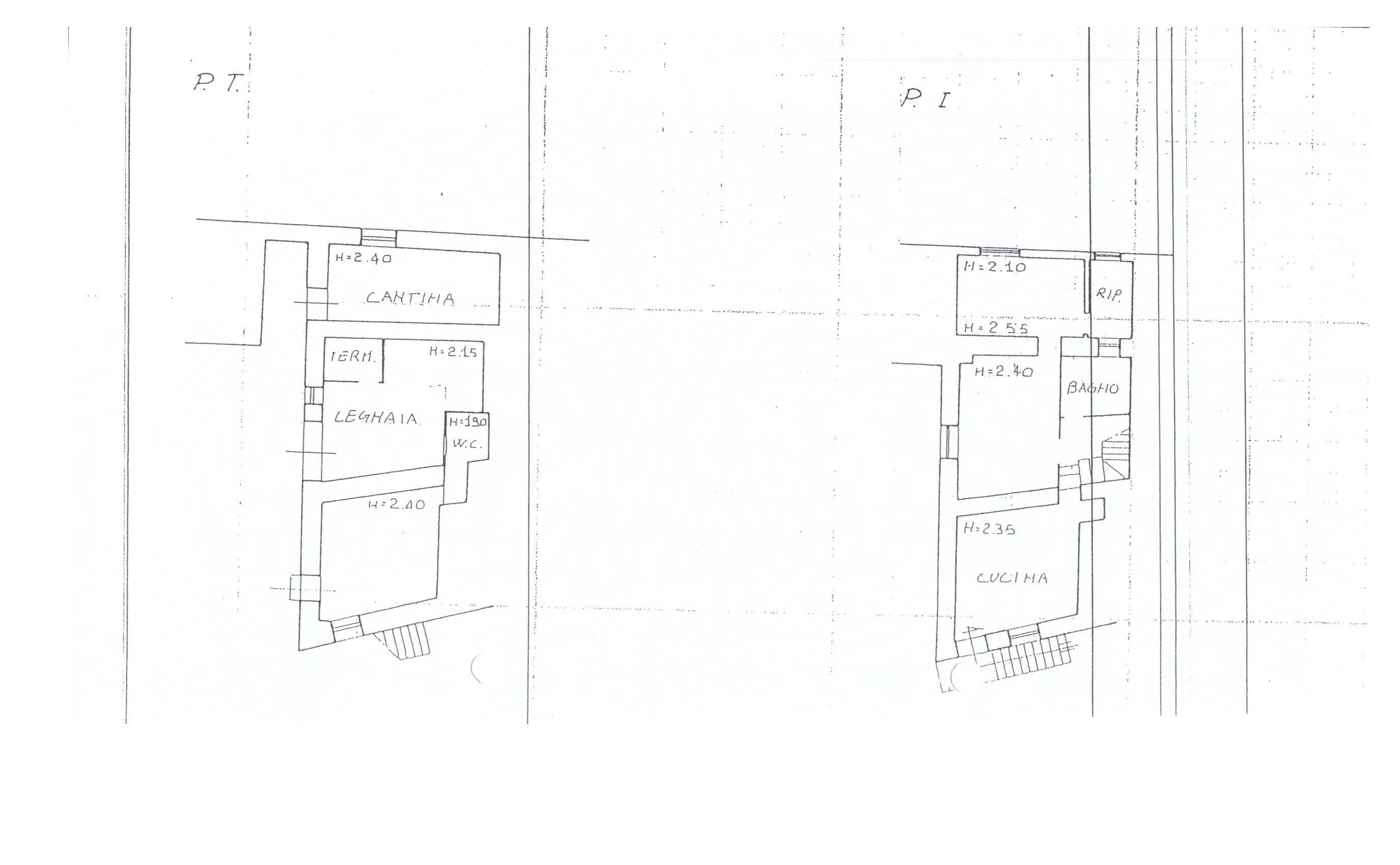
Nel piccolo borgo di Chiaserna di Cantiano, alle pendici del Monte Catria e patria del cavallo nel centro Italia, vendesi casetta indipendente cielo-terra di 113 mq distribuiti su più piani. 

L’immobile è in discrete condizioni generali con il tetto in buono stato, i pluviali e i discendenti già risistemati e comprende un appartamento principale e un monolocale al piano terra con bagno. 
L’appartamento principale è composto da ampie e luminose stanze, tra cui ben 4 camere da letto, un bagno e zona giorno caratterizzata da un bel camino. 
Il riscaldamento è autonomo a gasolio, ma facilmente riconvertibile con una caldaia a pellet usufruendo dei bonus fiscali. 

A completare la proprietà, uno scoperto esclusivo di 118 mq, cantina, ripostiglio ed un garage di 18 mq. 

Dato il prezzo di vendita molto vantaggioso, l’immobile potrebbe rivelarsi un’ottima soluzione anche per chi cerca una seconda casa per soggiorni di pace e relax in mezzo alla natura e per godersi della vista splendida e della tranquillità che un posto del genere sa regalare. 

Attestato di prestazione energetica G IPE 359,40 kW/m2anno 

Prezzo di vendita: € 50.000 trattabili 

Servizi Interni


Cucina
Bagni
Cantina
Camino/Camnietto

Planimetrie


TI INTERESSA QUESTO IMMOBILE? CONTATTACI SUBITO

Potrebbero interessarti anche questi..

Confronta