+39 347.1602123    +39 347.1674705
info@bramantesas.it

029.25 - Urbania zona panoramica - bellissimo casale di 180 mq con lotto di terreno e capanno di 160 mq

029.25 - Urbania zona panoramica - bellissimo casale di 180 mq con lotto di terreno e capanno di 160 mq


RIF: 029.25
INDIRIZZO: via Ponte Vecchio
CITTA': Urbania

€400.000,00

Dettagli


TIPOLOGIA: Case indipendenti
CONDIZIONI: Ottime
RISCALDAMENTO: Autonomo a GPL
TERRENO: 4800 mq
CUCINA: Abitabile
CLASSE IMMOBILE: Signorile
STATO IMMOBILE: Ottimo / Ristrutturato
LATI LIBERI: Quattro

180 m2
9 Stanza/e
4 Camera/e
3 Bagno/i
1 Garage
3 Piano/i

Descrizione


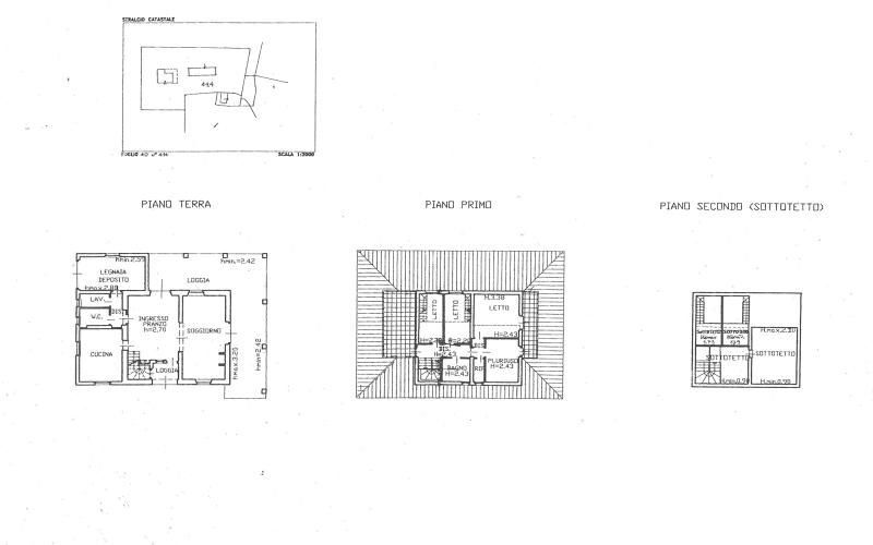
A Urbania, in una bellissima zona panoramica circondata dalle colline e dai meravigliosi paesaggi del Montefeltro, si vende una grande proprietà composta da un casale indipendente, un lotto di terreno di 4800 mq ed un ulteriore caseggiato da ristrutturare di 160 mq (ora adibito a capanno). 

La casa padronale, di oltre 180 mq di superficie, si sviluppa su tre piani e si compone di zona giorno con ampio ingresso, grande cucina abitabile con doppia esposizione, un enorme salone con camino, un bel bagno finestrato ed una comoda lavanderia. 
Il piano terra si completa anche di uno spazioso garage ed una bella loggia che si sviluppa su due lati del caseggiato e si affaccia sullo scoperto. 

Il primo piano è riservato alla zona notte, suddivisa in quattro camere, un ulteriore bagno finestrato con vasca, un ripostiglio, una grande terrazza panoramica ed un balcone. Le stanze di questo piano presentano un suggestivo tetto in legno con travi a vista, che rendono gli ambienti ancora più caldi e confortevoli. 

Il secondo piano è un sottotetto praticabile

Riscaldamento a GPL con bombolone interrato, acqua fornita da rete pubblica e da un pozzo di proprietà.

Ottime condizioni generali, molto ben rifinito.  
Classe energetica G EPgl,nren 375,63

Prezzo di vendita: € 400.000 trattabili 

Servizi Interni


Cucina
Bagni
Balcone
Terrazzo
Armadi a muro
Mansarda
Camino/Camnietto

Planimetrie


TI INTERESSA QUESTO IMMOBILE? CONTATTACI SUBITO

Potrebbero interessarti anche questi..

Confronta