+39 347.1602123    +39 347.1674705
info@bramantesas.it

024.25 - Fermignano in zona residenziale - vendesi appartamento di 100 mq con ampi balconi, doppio garage e giardino

024.25 - Fermignano in zona residenziale - vendesi appartamento di 100 mq con ampi balconi, doppio garage e giardino


RIF: 024.25
INDIRIZZO: via Luca Della Robbia
CITTA': Fermignano

€130.000,00

Dettagli


TIPOLOGIA: Appartamenti
CONDIZIONI: Molto buone
RISCALDAMENTO: Autonomo a metano
TERRENO: Giardino di proprietà e condominiale
CUCINA: Abitabile
CLASSE IMMOBILE: Media
STATO IMMOBILE: Buono / Abitabile
LATI LIBERI: Tre

100 m2
5 Stanza/e
3 Camera/e
2 Bagno/i
1 Garage
1 Piano/i

Descrizione


A Fermignano, in una tranquilla zona residenziale, si vende un appartamento di circa 100 mq al secondo piano di una moderna palazzina molto curata e ben tenuta.     
La zona è caratterizzata da abitazioni familiari circondate da verdi giardini e strade di vicinato a senso unico che garantiscono poco traffico e sicurezza. 

L'appartamento di ampie metrature, è composto da un grande salone, una cucina abitabile con un camino ad angolo in cui divertirsi a cucinare e a preparare gustose grigliate, tre camere, due bagni entrambi finestrati, uno dei quali provvisto di vasca.    
Gli ambienti sono tutti ampi e luminosi, grazie anche alla presenza di porte-finestre per l'accesso diretto ai tre grandi balconi che circondano l'appartamento su tre lati.  

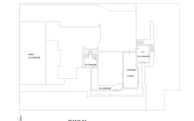
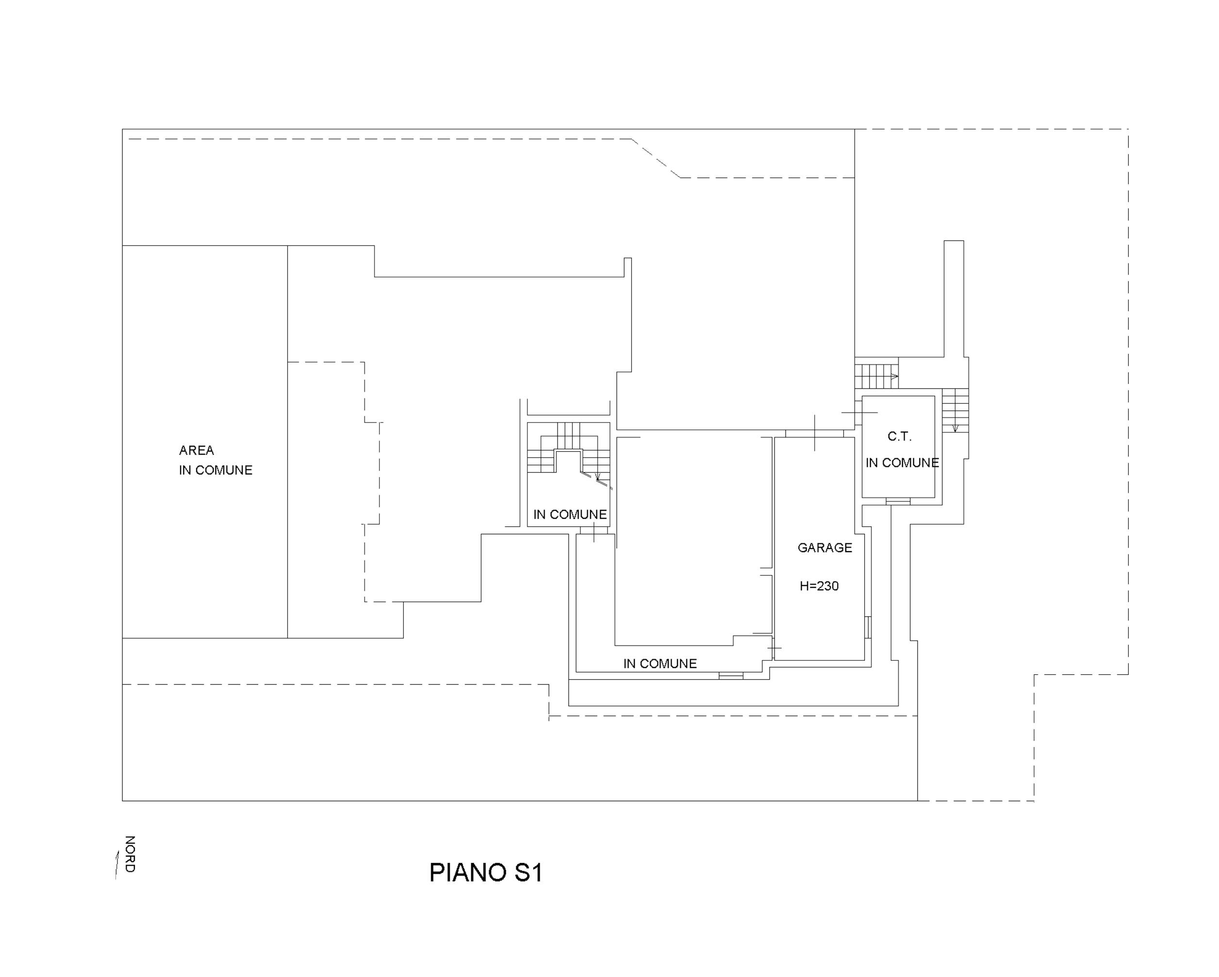
A completare la proprietà un doppio garage di ben 40 mq collocato nel piano seminterrato e accessibile attraverso una rampa esterna o la scala condominiale, un giardino esclusivo e il giardino condominiale in condivisione con gli altri inquilini dell'edificio.   

Riscaldamento indipendente a metano, infissi in legno con vetrocamera, pavimenti in monocottura e buone condizioni generali.     

Classe energetica in fase di stesura.
Prezzo di vendita: € 130.000

Servizi Interni


Bagni
Balcone
Camino/Camnietto

Planimetrie


TI INTERESSA QUESTO IMMOBILE? CONTATTACI SUBITO

Potrebbero interessarti anche questi..

Confronta